REPARABAT - Bureau d'Études Spécialisé dans le Bâti Ancien

RéparaBat est votre partenaire de confiance pour la réparation, la rénovation et la réhabilitation du patrimoine bâti ancien à Paris, Angers, Nantes, Rennes et dans toute la France. Spécialisés dans la préservation des structures historiques, nous offrons des services sur mesure pour chaque type de bâtiment, qu'il s'agisse de structures en bois, métal, béton ou pierre. Nous intervenons rapidement et réduisons les coûts des chantiers grâce à nos méthodes de calcul avancées et à nos solutions de renforcement innovantes.

Nos Services d'Ingénierie pour la Préservation du Patrimoine
Étude et Diagnostic de Structures
Nous réalisons des diagnostics précis et des études structurelles détaillées pour évaluer l’état de vos bâtiments anciens. Nos experts identifient les pathologies et proposent des solutions adaptées, basées sur les normes européennes et les règles de construction traditionnelles.

Réparation de Structures en Bois et Métal

RéparaBat se spécialise dans la réparation et le renforcement des structures en bois et métal, notamment celles affectées par le temps ou par des événements imprévus. Nous intervenons de manière ciblée pour préserver l’intégrité et l’authenticité de vos ouvrages.
Rénovation Abordable du Bâti Ancien
Nous vous offrons des solutions de rénovation abordable et réalisable qui allient modernité et respect des matériaux d’origine. Que ce soit à Paris, Angers, Nantes ou Rennes, nos interventions garantissent la pérennité de votre patrimoine.

Réhabilitation et Préservation du Patrimoine Architectural
En tant qu’experts en réhabilitation du bâti ancien, nous mettons notre savoir-faire au service de la préservation du patrimoine architectural. Nos méthodes innovantes et nos systèmes de calcul personnalisés permettent d’adapter les bâtiments aux exigences contemporaines tout en respectant leur histoire.


Reconstruction et Renforcement de Bâtiments
Lorsque la réparation ne suffit pas, RéparaBat propose des services de reconstruction partielle ou totale de bâtiments. Nous veillons à conserver l'esthétique originale tout en améliorant la résistance et la sécurité des structures.
Pourquoi Choisir RéparaBat ?
Expertise Localisée
Avec une forte présence à Paris, Angers, Nantes et Rennes, nous comprenons les spécificités régionales et proposons des solutions adaptées à chaque zone géographique. tout en mutualisant le savoir des différentes régions.
Méthodes Innovantes

Nos techniques de calcul structurel et nos approches de réparation sont basées sur une combinaison de normes actuelles et traditionnelles, garantissant des résultats durables et économiquement viables.
Engagement en Préservation
Nous privilégions une approche conservatrice en intervenant uniquement sur les parties du bâtiment nécessitant une réparation. Notre objectif est de préserver le maximum de l’ouvrage original tout en assurant sa stabilité.
Rapidité d'Exécution
Nous faisons preuve de flexibilité pour nous adapter à vos contraintes et proposons des rendez-vous rapides pour démarrer votre projet au plus vite, assurant ainsi un projet bien défini et un suivi efficace.
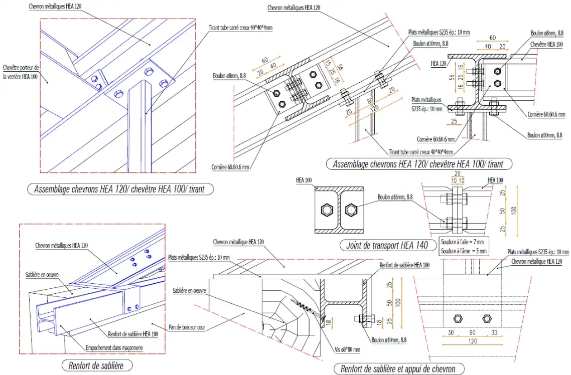
Notre Expertises en Structure Bois et Métal sur le Vieux Bâti
Projets Récents : Rénovation et Réhabilitation
Chez RéparaBat, chaque projet est une occasion de combiner notre expertise technique avec une profonde appréciation du patrimoine architectural. Nous nous engageons à restaurer, renforcer, et réhabiliter les bâtiments anciens en respectant leur histoire tout en intégrant des solutions modernes pour garantir leur longévité.
Nos réalisations récentes incluent la réparation de planchers, la réhabilitation de charpentes, et la reconstruction de sections endommagées. Chaque projet est soigneusement planifié et exécuté avec une attention particulière à la qualité et à la préservation de l'intégrité architecturale des bâtiments.
Pour assurer le succès de ces projets, nous effectuons des sondages détaillés afin de bien comprendre l’état des structures avant d’intervenir. Ces études nous permettent de cibler précisément les zones nécessitant des réparations, minimisant ainsi les travaux tout en garantissant la sécurité et la durabilité des bâtiments.

Listing des Désordres et Pathologies du Bâti Ancien
Les bâtiments anciens présentent souvent une multitude de désordres liés à l’usure du temps, aux conditions environnementales, et à des interventions passées inappropriées. Ces pathologies varient en fonction des matériaux utilisés, mais partagent des causes communes telles que l'humidité, qui peut entraîner la corrosion de l'acier, ou le développement de champignons et d’insectes xylophages dans le bois.




Liste des Pathologies Recensées et Expliquées:

- Les planchers hauts
- Les planchers bas
- Les planchers de caves
- Les charpentes
- Les poitrails de rez-de-chaussée
- Les pans de bois
- Les pans de fer
- Les murs maçonnés
- Les escaliers anciens et récents
- Les cloisons d'époques ou neuves
- Les conduits de cheminée déposés
- Désordres divers vu sur chantier
Articles Techniques Comprendre le Bâti Ancien
Nous écrivons des articles sur le bâtiment ancien, notamment sur la composition des systèmes constructifs (plancher, pan de bois, charpente...). Ces articles sont illustrés par des photos prises sur chantiers, par des schémas de principes ou par des modélisations 3D, réalisées avec nos logiciels de modélisations. Nos articles sont consultables sur notre site web ou bien à lire sur LinkedIn, n'hésitez pas à nous mettre des likes ;). Notre page LinkedIn est accessible ici.
Rédaction d'Article pour Elargir la Connaissance du Vieux Bâti
Partage de Connaissances
Nous voulons partager notre expertise sur le bâti ancien pour faciliter la compréhension globale, tant pour nos clients que pour ceux intéressés par nos études.
Contenu Educatif
À terme, ce partage de connaissances permettra de préparer des cours et du contenu éducatif, visant à former et informer sur les techniques de restauration du patrimoine.
Contactez-Nous au plus Vite pour Réaliser Votre Projet
Les services du Bureau d'Etudes pour Réussir son Projet

En réponse à votre demande, nous vous proposons de convenir d'un rendez-vous sur place afin d'échanger sur vos exigences spécifiques et d'établir un devis détaillé.
Nous tenons à souligner que nos estimations sont fournies gratuitement. De plus, pour certains travaux courants, nous sommes en mesure de les réaliser à distance et de vous remettre un devis complet en moins de 48 heures.


















